QZF-89型全天候防冻防火阻火呼吸阀操作应用案例
QZF-89全天侯防冻防火呼吸阀是安装在固定顶罐上的通风装置,起减少油品蒸发损耗,控制储罐压力及阻止外界火焰传入的作用。ZF-89全天侯防冻防火呼吸阀具有通风量大,泄漏量小,耐腐蚀等特点,并有静电接地线,使该阀与罐体保持等电位。该阀具有防冻性能,适用于寒冷地区。
在工业安全领域,呼吸阀作为一种重要的安全装置,广泛应用于各类储罐系统。其中,QZF-89型全天候防火呼吸阀是较为常见的一种型号。本文将就该型号呼吸阀的基本原理、结构特点和使用维护进行介绍。

1、QZF-89型全天候防冻防火阻火呼吸阀操作应用案例基本原理
呼吸阀是一种用于维持储罐内部压力稳定的装置。在储罐的正常运行过程中,由于外界温度变化、液体进出等因素,罐内气体会发生膨胀或收缩。当罐内压力升高时,呼吸阀的呼气功能启动,将多余气体排出;当罐内压力降低时,吸气功能启动,将外部空气吸入。这种自动调节作用保持了储罐内外压力平衡,防止储罐因过压或负压而受损。
QZF-89型呼吸阀在设计上考虑了防火需求,其内部采用了能够阻断火焰传播的结构。当外部发生火灾时,这种结构可以防止火焰通过呼吸阀进入储罐内部,从而提高设备的安全性。常压、低压储罐在流程工业中扮演着重要角色。然而,这些储罐在使用过程中常常面临挑战,如储罐内液面的变化、外界温度的波动等,这些因素会导致储罐内气体膨胀或收缩,进而引发储罐内气相压力的波动。这种压力波动若不及时控制,可能会使储罐陷入超压或真空的失稳状态,严重时甚至可能造成储罐鼓胀或瘪塌。
为了应对这些挑战,工艺设计中通常采取一项关键措施:在罐顶安装呼吸阀。呼吸阀通过其独特的内部结构和工作原理,能够有效地维持储罐的气压平衡。其内部实质上包含一个压力阀盘和一个真空阀盘,这两个阀盘可并排或重叠布置。当储罐压力与大气压力保持一致时,这两个阀盘与阀座紧密结合,利用阀座边上的密封结构产生的“吸附"效应,确保紧密不漏。而当压力或真空度发生变化时,阀盘会相应开启,但“吸附"效应仍会发挥作用,保持优良的密封性能。通过这种方式,呼吸阀能够有效地保护储罐安全,减少物料的挥发和损耗,同时也有助于安全和环保。
当储罐内的压力逐渐升高,达到设定的定压值时,压力阀会自动打开,允许罐内的气体通过呼气阀(即压力阀)侧排入到外界的大气中。此时,由于罐内正压的作用,真空阀则保持关闭状态。相反,当储罐内的压力下降到某一特定的真空度时,大气压的正压会使真空阀打开,外界的空气通过吸气阀(即真空阀)侧进入罐内进行补充。在这一过程中,压力阀则保持关闭。需要强调的是,在任何时间点,压力阀和真空阀都不会同时处于开启状态。一旦罐内的压力或真空度恢复到正常的操作压力范围,压力阀和真空阀将自动关闭,从而停止呼气或吸气的过程。
呼吸阀的作用及工作原理
呼吸阀在储罐中扮演着重要的角色。它不仅在正常状态下起到密封作用,还在多种情况下发挥其独特的功能。具体来说,当储罐向外输出物料时,呼吸阀会开始向罐内吸入空气或氮气,确保罐内压力的稳定。同样,当向储罐内灌装物料时,呼吸阀则负责将罐内多余的气体呼出,以维持罐内的平衡。此外,由于气候变化或物料蒸汽压的改变,呼吸阀会相应地呼出蒸汽或吸入空气,这种通常被称为热效应的现象,有助于防止储罐因压力变化而受损。另外,在发生火灾等紧急情况下,呼吸阀会迅速向罐外呼出气体,以避免储罐因超压而破裂。总之,呼吸阀的这些功能都是为了确保储罐的安全和稳定运行。

2、QZF-89型全天候防冻防火阻火呼吸阀操作应用案例结构特点
该型号呼吸阀主要由阀体、阀盖、压力阀盘、真空阀盘和防火元件等部分组成。阀体通常采用铸铁或铸钢材料制造,具有良好的机械强度和耐腐蚀性能。阀盘由轻质材料制成,能够灵敏地响应压力变化。
防火元件是这款呼吸阀的核心部件之一,它由多层金属网组成。这些金属网具有大量的细小通道,当火焰通过这些通道时,会因热量散失而熄灭。这种设计使得呼吸阀在正常工作时保证气体顺畅通过,在遇到明火时又能有效阻隔火焰。
该型号呼吸阀的另一特点是其全天候性能。通过特殊设计,阀盘在低温环境下不易冻结,在高温环境下也能正常工作。这使得它能够适应各种气候条件,保证在不同季节和天气条件下都能可靠运行。
QZF-89型全天候防火呼吸阀作为工业安全设备的一种,其正确选择、安装和维护对保障储罐安全运行具有重要意义。通过了解其工作原理和特点,用户可以更好地使用和维护这一设备,从而为安全生产提供有力保障。

二、QZF-89全天侯防冻防火呼吸阀操作压力:
正压:353Pa(36mmH2O),
980Pa(100mmH20)
负压:295Pa(30mmH2O)

QZF-89型全天候防冻防火阻火呼吸阀操作应用案例主要技术参数:
正压 | 353Pa (36mmH2O), 980.7Pa(100mmH2O) |
负压 | 294.2Pa(36mmH2O) |
三、零部件材料:
阀体材料 | 碳钢WCB、不锈钢304、316、铝合金 |
正压阀盘材料 | 不锈钢304、316、铝合金 |
负压阀盘材料 | 不锈钢304、316、四氟PTFE |
环境温度 ℃ | -30~60 |
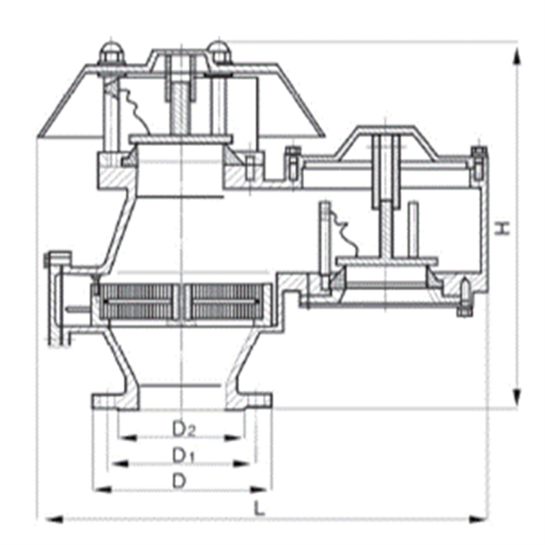
四、QZF-89型全天候阻火呼吸阀国标法兰连接外形尺寸: GB、JB
规格 | 安装尺寸(mm) | ||||
D1 | D | L | H | N-d | |
DN50 | Ø110 | Ø140 | 362 | 360 | 4×14 |
DN80 | Ø170 | Ø185 | 513 | 445 | 4×18 |
DN100 | Ø170 | Ø205 | 513 | 445 | 4×16 |
DN150 | Ø225 | Ø260 | 640 | 610 | 8×18 |
DN200 | Ø280 | Ø315 | 770 | 700 | 8×18 |
DN250 | Ø335 | Ø370 | 918 | 828 | 12×18 |
DN300 | Ø395 | Ø435 | 1050 | 910 | 12×23 |
三、QZF-89型全天候防冻防火阻火呼吸阀操作应用案例外形连接尺寸:

规格 | 图号 | 安装尺寸(毫米) | ||||||
H | L | D | D1 | D2 | n | d | ||
DN20 | RQZF-50 | 360 | 362 | Φ140 | Φ110 | Φ90 | 4 | 14 |
DN80 | RQZF-80 | 445 | 513 | Φ185 | Φ150 | Φ125 | 4 | 18 |
DN100 | RQZF-100 | 445 | 513 | Φ205 | Φ170 | Φ145 | 4 | 18 |
DN150 | RQZF-150 | 610 | 640 | Φ260 | Φ225 | Φ200 | 8 | 18 |
DN200 | RQZF-200 | 700 | 770 | Φ315 | Φ280 | Φ255 | 8 | 18 |
DN250 | RQZF-250 | 828 | 918 | Φ370 | Φ335 | Φ310 | 12 | 18 |
四、QZF-89型全天候防冻防火阻火呼吸阀操作应用案例安装说明:

1 .呼吸阀应安装在储罐气源的zui高点,以降低物料蒸发损耗和以便顺利地提供通向呼吸阀zui直接和zui大的通道。通常对于立式罐,呼吸阀应尽量安装在罐顶*顶板范围内,对于罐顶需设隔热层的储罐、可安装在梯子平台附近。
2 .当需要安装两个呼吸阀时,它们与罐顶中心应对称布置。
3 .若呼吸阀用在氮封罐上,则氮气供气管的接管位置应远离呼吸阀接口,并由罐顶部插入储罐内约200mm ,这样氮气进罐后不直接排出,达到氮封的目的。

3、QZF-89型全天候防冻防火阻火呼吸阀操作应用案例安装要求
呼吸阀的安装位置应选在储罐顶部的出众点,这样可以确保气体能够顺利聚集并通过阀门。安装前应检查法兰连接尺寸是否匹配,密封面是否平整无损。安装过程中要注意保持阀体垂直,不得倾斜。
在安装时还需注意,呼吸阀出口方向应避开经常有人活动的区域,以免排出气体对人员造成影响。出口处不应设置其他管件,以免影响呼吸阀的正常工作。在多风地区,建议在呼吸阀出口加装防风雨罩,但需确保不影响其通气性能。
4、QZF-89型全天候防冻防火阻火呼吸阀操作应用案例维护保养
定期维护是保证呼吸阀长期可靠工作的关键。一般情况下,每三个月应进行一次例行检查,检查内容包括:阀盘活动是否灵活、密封面是否完好、防火元件是否堵塞等。
在检查阀盘时,可轻轻推动阀盘,观察其上下运动是否顺畅无卡滞。若发现动作不灵,应拆开清洗。检查密封面时,应注意观察有无锈蚀或损伤,必要时进行研磨修复。防火元件的检查主要是查看其是否被油污或灰尘堵塞,如有堵塞应使用专用清洗剂进行清洗。
冬季来临前,应特别注意检查呼吸阀的防冻性能。可检查阀盘与阀座之间是否有积水,排水孔是否畅通。在寒冷地区,必要时可采取保温措施,但应注意不要影响阀盘的正常动作。

5、QZF-89型全天候防冻防火阻火呼吸阀操作应用案例常见问题处理
在实际使用中,呼吸阀可能会出现一些常见问题。例如,当发现储罐压力异常时,可能是呼吸阀阀盘卡住所致。此时应停止使用,拆开检查并清洗相关部件。若发现呼吸阀排气量不足,可能是防火元件部分堵塞,需要清洗或更换。
有时会出现阀盘频繁跳动的情况,这通常是由于压力设定值不当或阀盘过轻造成的。此时需要重新调整压力设定值或更换合适重量的阀盘。若发现密封不严,可能是密封面损伤或阀盘变形,需要进行修复或更换部件。
在处理这些问题时,应严格按照产品说明书的要求进行操作,使用合适的工具和备件。若遇到无法解决的问题,应及时联系专业技术人员进行处理。呼吸阀在各个领域都有其特定的标准。例如,在石油行业,SY/T 0511.1-2010标准规定了《石油储罐附件 第1部分:呼吸阀》的详细要求。对于铁道罐车,TB/T 3319-2013标准则明确了《铁道罐车用呼吸式安全阀》的规范。此外,道路运输易燃液体危险货物罐式车辆的呼吸阀,则需遵循QC/T 1064-2017的标准。而在欧洲,DIN EN 14595-2016标准则对《危险品运输罐 罐的操作装置 压力和真空呼吸阀》进行了详细规定。

QZF-89型全天候防冻防火阻火呼吸阀操作应用案例的安装要点
在安装呼吸阀时,必须严格遵循相关标准,确保其正确性和安全性。同时,还需要注意一些关键的安装要点,如确保呼吸阀与储罐的紧密连接,防止气体泄漏;另外,还要定期检查和维护呼吸阀,确保其持续有效地发挥其作用。
(1) 呼吸阀的安装位置是储罐顶部的点。这样设计不仅有助于减少蒸发损耗,还能确保呼吸阀顺畅地提供的通道。
(2) 对于大型或关键的储罐,为防范单台呼吸阀故障,可安装两台呼吸阀。通常,工艺设计会使得这两台呼吸阀在正常情况下轮流工作,一台作为备用。
(3) 当单个呼吸阀的呼吸量不足以应对大呼吸量时,可以安装两个或以上的呼吸阀。若选择安装两个,则它们应对称布置在罐顶中心。
(4) 若呼吸阀安装在氮封储罐上,氮气供气管的接管位置应远离呼吸阀接口,并深入罐内约200mm,以确保氮气能有效封存。
(5) 如果呼吸阀内设有阻火器,需注意其压降对呼吸阀排出压力的影响,以防止储罐超压。
(6) 在寒冷地区,特别是历年最冷月份温度的平均值低于或等于0℃时,呼吸阀应采取防冻措施。这可以防止阀盘因冻结或阻塞而影响储罐的正常排气和补气,从而避免储罐因超压或低压而出现问题。

6、QZF-89型全天候防冻防火阻火呼吸阀操作应用案例选型考虑
在选择呼吸阀时,需要考虑多个因素。首先是呼吸阀的通气能力,这需要根据储罐的进出料速度和当地气温变化范围来计算确定。其次是使用环境的温度范围,确保所选呼吸阀能在当地出众和气温下正常工作。
材料选择也很重要,需要根据储存介质的性质选择合适的阀体材料和密封材料。对于腐蚀性介质,应选用耐腐蚀材料或采取防腐措施。压力设定值的选择应根据储罐的设计压力来确定,既不能过高也不能过低。防火性能是需要特别关注的一个方面。在选择时,应确认呼吸阀的防火性能是否符合相关标准要求。还需要考虑安装便捷性、维护方便性以及备件供应等因素。