1.1 ► ZFQ-16PFA不锈钢衬氟防爆阻火呼吸阀应用案例储罐压力挑战 常压与低压储罐,在流程工业中司空见惯。这些储罐在运作时,会遭遇各种挑战,诸如储罐内液面的变化、外界温度的起伏等,这些都可能导致储罐内气体的膨胀与收缩。随之而来的结果是,罐内气体膨胀收缩,引起气相压力波动,构成超压或真空的潜在危险,严重时甚至可能引发储罐的超压鼓胀或低压塌陷。ZFQ-1不锈钢防爆阻火呼吸阀集阻火器与呼吸阀为一体,其新颖的结构为。是石化储罐的新型安全设备,阻火呼吸性能好,重量轻,使用方便。该产品适用于储存内点低于28 ℃的甲类油品和闪点低于 60 ℃的乙类油品,如汽油、笨、甲笨、煤油、轻柴油、机油、原油等油品及性质相同的化工产品储罐使用。亦可作为阻火单呼或单吸阀。 
产品特点1、壳体选用不锈钢、铸钢和铝合金,耐腐蚀性好; 2、阀盘采用四氟材料,耐低温,防冻性能好; 3、结构简单,易检修,安全方便。 4、性能符合石油工业部标准 SY7511-87 规定。 工作原理呼吸阀由压力阀和真空阀组成,安装于货油舱透气管上,能随货油舱内油气正负压变化而自动启闭,使货油舱内外气压差保持在允许值范围内。当罐内介质的压力在呼吸阀的控制操作压力范围之内时,呼吸阀不工作,保持油罐的密闭性;当往罐内补充介质,使罐内上部气体空间的压力升高,到呼吸阀的操作正压时,压力阀被顶开,气体从呼吸阀呼出口逸出,使罐内压力不在继续增高;罐外的大气将顶开呼吸阀的负压阀盘。 1.2 ► ZFQ-16PFA不锈钢衬氟防爆阻火呼吸阀应用案例呼吸阀的功能与重要性为了预防储罐因超压或负压而出现的不稳定状态,工艺设计上常常会采取在罐顶设置呼吸阀的措施。这样,当储罐内部压力超过或低于设定值时,呼吸阀能够自动开启或关闭,从而维持储罐内的气压平衡。呼吸阀通过压力阀和真空阀的组合维持储罐气压平衡,防止不稳定状态导致储罐损坏,并减少物料损失,兼具安全和环保贡献。

1.3 ► ZFQ-16PFA不锈钢衬氟防爆阻火呼吸阀应用案例呼吸阀的工作原理呼吸阀的内部构造关键在于其压力阀盘和真空阀盘的巧妙组合。这两种阀盘可以并排或重叠布置,共同构成呼吸阀的核心部件。其工作原理相当复杂且精细,具体来说: 当储罐内外的压力保持平衡时,压力阀和真空阀的阀盘与阀座紧密贴合,确保密封的严密性。这种紧密配合得益于阀座边上的特殊密封结构,它具有“吸附"效应,进一步增强了密封效果。 随着压力或真空度的变化,阀盘会相应开启。尽管如此,在阀座边上的“吸附"效应作用下,呼吸阀仍能保持较高的密封性能。呼吸阀中压力阀和真空阀的巧妙结合使阀门在压力或真空变化时自动开启或关闭,精细设计确保储罐的气压平衡。

ZFQ-16PFA不锈钢衬氟防爆阻火呼吸阀应用案例产品作用ZFQ-1不锈钢防爆阻火呼吸阀安装在储罐顶部,是解决罐内正压,负压的气体,使罐内的液体进出没有受到阻碍,当外液体输入罐内时有大量的气体往外呼(称正压)。如罐内液体往外输出时罐内必须从外空气吸进罐内(称负压)。如停止工作时呼吸阀自动关闭不会把罐内液气往外泄漏,使罐内的液体质量得到了有利的保障。 ZFQ-16PFA不锈钢衬氟防爆阻火呼吸阀应用案例适用范围ZFQ-1不锈钢防爆阻火呼吸阀适用于储存闪点低于 28 ℃的甲类油品和闪点低于 60 ℃的乙类油品,如汽油、笨、甲笨、煤油、轻柴油、机油、原油等油品及性质相同的化工产品储罐。全天候呼吸阀可与ZGB波纹阻火器配套使用。 在众多工业流程中,腐蚀性介质的输送与控制是一项持续存在的挑战。这些介质如同工业系统的“血液",而控制其通断与流量的阀门,则扮演着至关重要的“心脏"角色。普通金属阀门在此类环境中极易被侵蚀、失效,导致泄漏、污染甚至安全事故。一种特殊的阀门——衬氟阀门应运而生,其核心在于通过内衬氟塑料层,为金属阀体构建一道惰性屏障。本文将深入剖析衬氟衬里阀的制造过程,揭示其如何被锻造成能够抵御强腐蚀的“工业心脏"。 1ZFQ-16PFA不锈钢衬氟防爆阻火呼吸阀应用案例屏障的基石:氟塑料材料的特性与选择 衬氟阀门的耐腐蚀性能,根本源于其所衬的氟塑料材料。这类材料并非单一物质,而是一个具备共同特性——碳-氟键高度稳定——的聚合物家族。碳-氟键是已知的化学键之一,其键能,使得氟原子能够紧密地包裹碳链,形成一道几乎 高标准的电子云屏障。这一微观结构直接决定了宏观上三大关键特性:用户满意的化学惰性、极低的表面能以及宽广的适用温区。 制造厂依据具体工况介质(如硫酸、盐酸、有机溶剂等)的浓度、温度及是否存在颗粒物,进行精细化选材。常见的衬里材料包括聚四氟乙烯、可熔性聚四氟乙烯、聚全氟乙丙烯以及聚偏氟乙烯等。例如,对于超纯或要求洁净的介质,会选用经过特殊处理的PTFE;而对于需要更高机械强度或抗渗透性的场合,则会考虑PFA或PVDF。这种选择并非简单替换,而是基于分子结构差异所带来的抗蠕变性、抗冷流性及焊接性能的综合权衡。 
2ZFQ-16PFA不锈钢衬氟防爆阻火呼吸阀应用案例形态的赋予:从原料到预制衬里件 选定材料后,制造进入将粉状或颗粒状氟塑料原料塑形为与阀门内腔精确匹配的衬里件的阶段。这一过程的核心矛盾在于,氟塑料的高稳定性使其难以像普通塑料一样通过简单的加热熔融流动来成型。制造厂通常采用两种主要工艺:模压烧结成型和旋转成型。 模压烧结成型适用于结构相对复杂的阀体内腔。工艺人员将精确计量的氟塑料粉末填入预先设计好的金属模具中,在高压下压制成致密的胚体,随后送入高温烧结炉。在严格控制升温、保温、降温曲线的烧结过程中,塑料颗粒界面消失,熔结成致密、均匀的整体。此工艺的关键在于 压力与温度曲线的精确协同,压力确保胚体密度消除内部气泡,温度曲线则保证材料充分结晶又不至于分解。 旋转成型则更适用于大型或形状规则的阀门。它将定量粉末加入可旋转的金属模腔内,模具在加热炉中同时进行双轴旋转,粉末在离心力、重力及热作用下均匀附着于模腔内壁,熔融并固化。这种方法成型的衬里层厚度均匀,内应力小,但对其结构复杂性有一定限制。 3ZFQ-16PFA不锈钢衬氟防爆阻火呼吸阀应用案例刚与柔的结合:衬里与阀体的复合技术 预制好的氟塑料衬里件与金属阀体的结合,是制造中的核心工艺环节,直接决定了“心脏"在长期压力、温度交变下是否会“脱壳"失效。氟塑料与金属的热膨胀系数差异巨大,且其表面极其光滑惰性,难以与金属形成牢固粘结。制造厂多元化采用机械与物理方法相结合的复合技术。 一种常见的方法是松衬加热胀法。将衬里件置入阀体,利用氟塑料在高温下的热膨胀特性,使其在受热时膨胀紧贴阀体内壁,冷却后收缩,依靠过盈配合产生压应力。但仅靠此力并不可靠,因此通常会辅以 法兰翻边包覆与金属压环锁定。在阀体通道端口,将衬里材料向外翻折,包裹住金属法兰面,再用特制的金属压环通过螺栓施加恒定的压紧力,将翻边部位压实密封。这种设计同时实现了阀体内部的衬里保护与端面的密封,并有效防止了介质渗入衬里与阀体之间的缝隙。 对于更高要求的场合,会采用等压成型技术。将阀体作为模具的一部分,在内部填充氟塑料粉末,然后在阀体外部施加压力(通常通过液压或气压),使粉末在加热状态下同时完成向阀体内壁的成型、压实与烧结,实现衬里与阀体的无间隙贴合。 4ZFQ-16PFA不锈钢衬氟防爆阻火呼吸阀应用案例动态密封的创造:阀芯与阀座的衬里集成 阀门的“心跳"——启闭功能,依赖于阀芯(如球体、阀瓣、蝶板)与阀座之间的精密配合与可靠密封。在衬氟阀门中,这一动态密封副也多元化受到氟塑料的保护。这带来了比静态阀体衬里更大的技术挑战,因为运动部件需要兼顾耐腐蚀、低摩擦、抗磨损及形状精度。对于球阀,制造厂通常采用在金属球体表面包覆一层氟塑料的方式。这要求包覆层多元化均匀、无接缝,且与球体结合牢固,在长期转动中不产生位移或剥离。工艺上可能采用注塑包覆或烧结包覆。而对于蝶阀,蝶板往往整体由氟塑料制成,或采用金属骨架外包氟塑料。阀座的制造则更为关键,它通常是在金属阀体上加工出槽位,嵌入预制成型的氟塑料阀座圈,并通过结构设计确保其在介质压力下能产生自紧密封效应,同时 补偿因温度和磨损造成的微量形变。 
5ZFQ-16PFA不锈钢衬氟防爆阻火呼吸阀应用案例可靠性的验证:从微观检测到宏观测试 制造完成的衬氟阀门,在出厂前多元化经过一系列严苛的验证,以确保其“工业心脏"的长期可靠性。检测贯穿从材料到成品的全过程。 在微观层面,会对氟塑料原料及衬里层切片进行材料分析,如差示扫描量热法分析其熔点和结晶度,确保材料性能达标。利用超声波测厚仪或涡流测厚仪,无损检测衬里层各关键点的厚度均匀性,任何过薄或厚度突变点都可能是潜在弱点。 宏观功能性测试则模拟实际工况。强度试验通常以水为介质,施加远高于公称压力的试验压力,检验阀体与衬里结构的完整性。密封试验分为高低压两端,低压试验用空气或氮气,检查阀门在微小压差下的密封灵敏度;高压密封试验则验证其在额定压力下的零泄漏性能。关键的 是热循环压力试验,将阀门在冷热介质间交替循环,同时施加压力,以此考核氟塑料衬里与金属阀体因热膨胀系数差异而产生的应力是否会导致结合失效或密封泄漏,这是评估其长期服役性能的加速实验方法。 6应用边界的界定:性能优势与固有局限 经过上述精密制造与严格验证的衬氟阀门,确实在耐腐蚀领域展现出不可替代的优势。它能耐受绝大多数强酸、强碱、有机溶剂和混合介质的腐蚀,使用寿命远超普通金属阀门,极大降低了因阀门腐蚀失效导致的维护成本和停产风险。其氟塑料衬里层还具备不粘附、高洁净度等特点,适用于食品、制药等高卫生要求行业。 然而,如同任何技术产品,衬氟阀门也有其明确的性能边界。氟塑料的机械强度、刚度和抗蠕变性能低于金属,因此衬氟阀门通常有明确的 压力-温度额定值曲线,在高温下许用压力会显著下降。氟塑料对某些特殊介质(如熔融碱金属、三等)并不耐受。再者,含有固体颗粒的高速介质流可能会对衬里表面造成冲蚀磨损。急剧的温度变化(热冲击)可能因衬里与金属的膨胀收缩不同步而导致开裂或脱层。其成功应用不仅依赖于制造的精密,更依赖于用户根据具体工况对其性能边界的准确理解与遵守。 衬氟衬里阀的制造,是一个将氟塑料的化学稳定性与金属的结构强度创造性融合的系统工程。它并非简单地在阀门内部粘贴一层塑料,而是涉及从分子级别的材料科学,到宏观尺度的精密机械加工与成型工艺,再到严苛的可靠性物理验证的全链条技术整合。每一台合格的衬氟阀门,都是对腐蚀性介质与复杂工况的理性回应,其价值在于通过精密、可靠的内部屏障,确保工业流程中腐蚀性介质的安全、可控流动,从而成为众多苛刻工业系统中名副其实的、持久搏动的“耐腐蚀心脏"。理解其制造逻辑,有助于更科学地选用和维护这一关键部件,发挥其创新效能。 
ZFQ-16PFA不锈钢衬氟防爆阻火呼吸阀应用案例操作压力| 压力 | 等级 | | A | B | C | D | | 呼出压力 | +355Pa(36mmH20) | +980Pa(100mmH20) | +1765Pa(180mmH20) | 特殊指定 | | 吸入压力 | -295Pa(30mmH20) | -295Pa(30mmH20) | -392Pa(40mmH20) | 特殊指定 |
通气量表| 代号 | 规格mm | 50 | 80 | 100 | 150 | 200 | 250 | | 压力等级Pa | 通气量m3/h | | A | +335 | 25 | 60 | 90 | 190 | 340 | 550 | | -295 | 20 | 50 | 75 | 160 | 280 | 450 | | B | +980 | 30 | 70 | 100 | 200 | 380 | 600 | | -295 | 20 | 50 | 75 | 160 | 280 | 450 | | C | +1765 | 40 | 95 | 140 | 280 | 500 | 800 | | -295 | 20 | 50 | 75 | 160 | 280 | 450 | | 标准允许泄漏量m3/h | ≤0.04 | ≤0.4 |
材料代号| 代号 | 材料 | | Ⅰ | ZALSi7Mg | 铸铝合金 | 铝合金 | 1Cr13 | 304 | 聚四氟乙烯 | 油品 | | Ⅱ | CS | 碳钢 | 304 | 304 | 304 | 聚四氟乙烯 | 油品、化工品 | | Ⅲ | OCr18Ni9 | SS304 | 304 | 304 | 304 | 聚四氟乙烯 | 化工品 | | Ⅳ | 00Cr19Ni11 | SS304L | 304L | 304L | 304L | 聚四氟乙烯 | 化工品 | | Ⅴ | 0Cr17Ni12Mo2 | SS316 | 316 | 316 | 316 | 聚四氟乙烯 | 化工品 | | Ⅵ | 00Cr17Ni14Mo2 | SS316L | 316L | 316L | 316L | 聚四氟乙烯 | 化工品 |
ZFQ-16PFA不锈钢衬氟防爆阻火呼吸阀应用案例主要零部件| 阀体材料 | WCB、304、316、铝合金 | | 正压阀盘材料 | 304、316、铝合金 | | 负压阀盘材料 | 304、316、四氟PTFE | | 环境温度 ℃ | -30~60 |
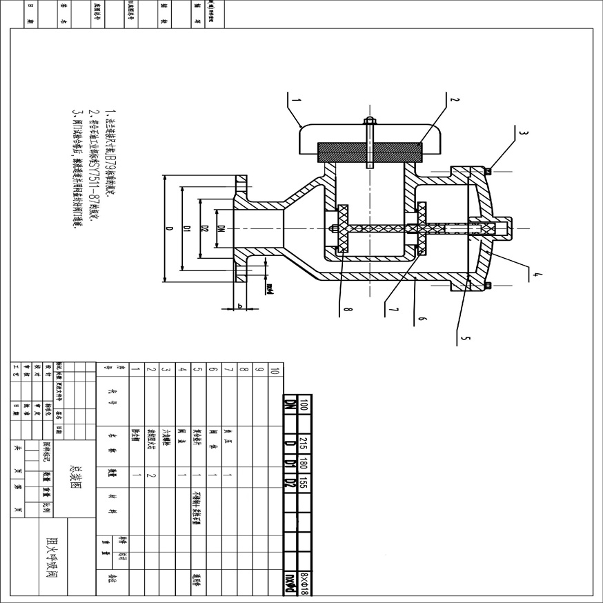
ZFQ-16PFA不锈钢衬氟防爆阻火呼吸阀应用案例外形结构图 
ZFQ-16PFA不锈钢衬氟防爆阻火呼吸阀应用案例主要外形尺寸| 通径 | 型号 | H | L | D | D1 | D2 | | DN50 | ZFQ-50 | 205 | 160 | Φ140 | Φ110 | Φ90 | | DN80 | ZFQ-80 | 250 | 205 | Φ185 | Φ150 | Φ125 | | DN100 | ZFQ-100 | 270 | 225 | Φ205 | Φ170 | Φ145 | | DN150 | ZFQ-150 | 320 | 295 | Φ260 | Φ200 | Φ200 | | DN200 | ZFQ-200 | 340 | 330 | Φ315 | Φ225 | Φ225 | | DN250 | ZFQ-250 | 768 | 666 | Φ370 | Φ310 | Φ310 | | DN300 | ZFQ-300 | 840 | 704 | Φ435 | Φ395 | Φ362 |
ZFQ-16PFA不锈钢衬氟防爆阻火呼吸阀应用案例使用说明
1、呼吸阀应安装在储罐气源的点,以降低物料蒸发损耗和以便顺利地提供通向呼吸阀最直接和的通道。通常对于立式罐,呼吸阀应尽量安装在罐顶顶板范围内,对于罐顶需设隔热层的储罐、可安装在梯子平台附近; 2、当需要安装两个呼吸阀时,它们与罐顶中心应对称布置; 3、若呼吸阀用在氮封罐上,则氮气供气管的接管位置应远离呼吸阀接口,并由罐顶部插入储罐内约 200mm ,这样氮气进罐后不直接排出,达到氮封的目的。
2.呼吸阀的应用与安装 2.1 ► 呼吸阀的使用条件呼吸阀在常态下发挥密封作用,其工作启动需满足特定条件,包括储罐物料输出时吸入空气或氮气、灌装物料时呼出罐内气体、因气候变导致罐内蒸汽压变化时呼出蒸汽或吸入空气、火灾时呼出气体以防止储罐超压,以及其他如挥发性液体输送、化学反应或操作失误等工况下的呼出或吸入,以保护储罐免受超压或超真空损害。此外,呼吸阀还受到一系列标准规范,如SY/T 0511.1-2010《石油储罐附件 第1部分:呼吸阀》等,以确保其安全有效运行。 2.2 ► 呼吸阀的安装要点呼吸阀的安装要点包括以下几个方面。首先,呼吸阀应被安装在储罐顶部的点,这是为了确保其能够顺畅地提供通向呼吸阀的最直接和的通道,从而降低蒸发损耗并优化排气效果。呼吸阀应安装在储罐顶部,并在需要时配置多台,考虑氮气管位置、对称布置、防冻等因素,以确保正常运作和储罐保护。 其次,对于大型或关键的储罐,为防范单台呼吸阀故障可能导致的超压或负压风险,可以安装两台呼吸阀,并设计成一台工作、一台备用的模式,以避免两台呼吸阀同时动作增加故障几率。再者,当单个呼吸阀的呼吸量无法满足需求时,可以设置两个或以上的呼吸阀,并确保它们在罐顶上对称布置。此外,若呼吸阀将安装在氮封储罐上,氮气供气管的接管位置应远离呼吸阀接口,并深入罐内约200mm,以确保氮气能够有效封存而不直接排出。 同时,若呼吸阀内设有阻火器,必须考虑其压降对呼吸阀排出压力的影响,以防止储罐超压。最后,在寒冷地区,当历年最冷月份的温度平均值低于或等于0时,呼吸阀应采取防冻措施,以防阀盘冻住或阻塞导致排气不畅或补气不足,进而引发储罐超压或低压问题。 
ZFQ-16PFA不锈钢衬氟防爆阻火呼吸阀应用案例维护保养为了呼吸阀使用安全,应在3-6个月内定期将波纹阻火层拆下,清洗干净,保证阻火层上每个孔畅通,防止堵塞,确保安全正常使用。定期检查通风气正、负阀盘动作是否灵活,导杆及阀盘接触密封面有无损坏,如有损坏应立即调换。在检查维护重新安装时,应保证阀内各结合面严密配合,阀盘升降灵活。新阀启用时,应安装前清除阀盘间的防震物,否则呼吸阀将失灵。 |