石油储罐全天候防冻呼吸阀安装维护的重要性
在流程工业中,常压和低压储罐是的设备。然而,这些储罐在使用过程中常常会面临挑战。由于储罐内液面的变化或外界温度的波动,储罐内的气体可能会发生膨胀或收缩,进而导致储罐内气相压力的不稳定。这种压力波动不仅可能使储罐超出其设计范围,造成超压或真空的情况,严重时甚至可能引发储罐的损坏。为了确保储罐的安全与稳定,工艺设计中通常会采取一项关键措施:在罐顶安装呼吸阀。这个呼吸阀的设计巧妙,它由一个压力阀盘和一个真空阀盘组合而成,这两个阀盘可以并排或重叠布置。其工作原理在于,当储罐压力与大气压力保持平衡时,这两个阀盘与阀座会紧密结合,利用阀座边上的密封结构产生的“吸附”效应来确保紧密不漏。而当压力或真空度发生变化时,阀盘会相应开启,同时,“吸附”效应依然存在,从而保证密封性能的稳定。通过这种方式,呼吸阀有效地维持了储罐的气压平衡,保护了储罐的安全,并减少了物料的挥发和损耗,对安全和环保都起到了积极的推动作用。
与普通的呼吸阀相比,全天候防冻呼吸阀具备以下优势:全天候防冻呼吸阀的类型
根据不同的应用场景,进口全天候防冻呼吸阀主要分为以下几种类型:
压力平衡型呼吸阀通过内部的压力平衡机构,确保阀门在不同压力下都能正常工作。这种类型的呼吸阀通常用于需要承受较高压力的系统,例如热水系统和工业设备。
自动排气型呼吸阀能够自动排放系统内的空气和水分,防止系统内压力过高或过低。这种类型的呼吸阀通常用于需要经常排气的系统,例如供暖系统和空调系统。
防冻型呼吸阀专门针对寒冷气候设计,能够在低温环境下正常工作,防止阀门冻结失效。这种类型的呼吸阀通常用于需要在寒冷环境下使用的系统,例如车辆和户外设备。

选择进口全天候防冻呼吸阀时,需要考虑以下因素:
根据系统的工作压力选择合适的呼吸阀,确保呼吸阀能够承受系统压力,并能够正常工作。
根据系统的工作温度选择合适的呼吸阀,确保呼吸阀能够在低温环境下正常工作,防止阀门冻结失效。
根据系统的流量选择合适的呼吸阀,确保呼吸阀能够满足系统的排气需求,并能够正常工作。
根据系统的环境和腐蚀性选择合适的呼吸阀材质,确保呼吸阀能够抵抗腐蚀,并能够长期稳定工作。
全天候防冻呼吸阀在各个领域都有着广泛的应用,例如:
在供暖系统中,呼吸阀能够防止系统内压力过高或过低,确保系统正常工作,并能够防止冷凝水积聚,防止管道冻结。
在空调系统中,呼吸阀能够防止系统内压力过高或过低,确保系统正常工作,并能够防止冷凝水积聚,防止管道冻结。
在热水系统中,呼吸阀能够防止系统内压力过高或过低,确保系统正常工作,并能够防止冷凝水积聚,防止管道冻结。
在工业设备中,呼吸阀能够防止系统内压力过高或过低,确保系统正常工作,并能够防止冷凝水积聚,防止设备腐蚀。
在车辆中,呼吸阀能够防止油箱内压力过高或过低,确保油箱正常工作,并能够防止油箱内水分积聚,防止油箱腐蚀。

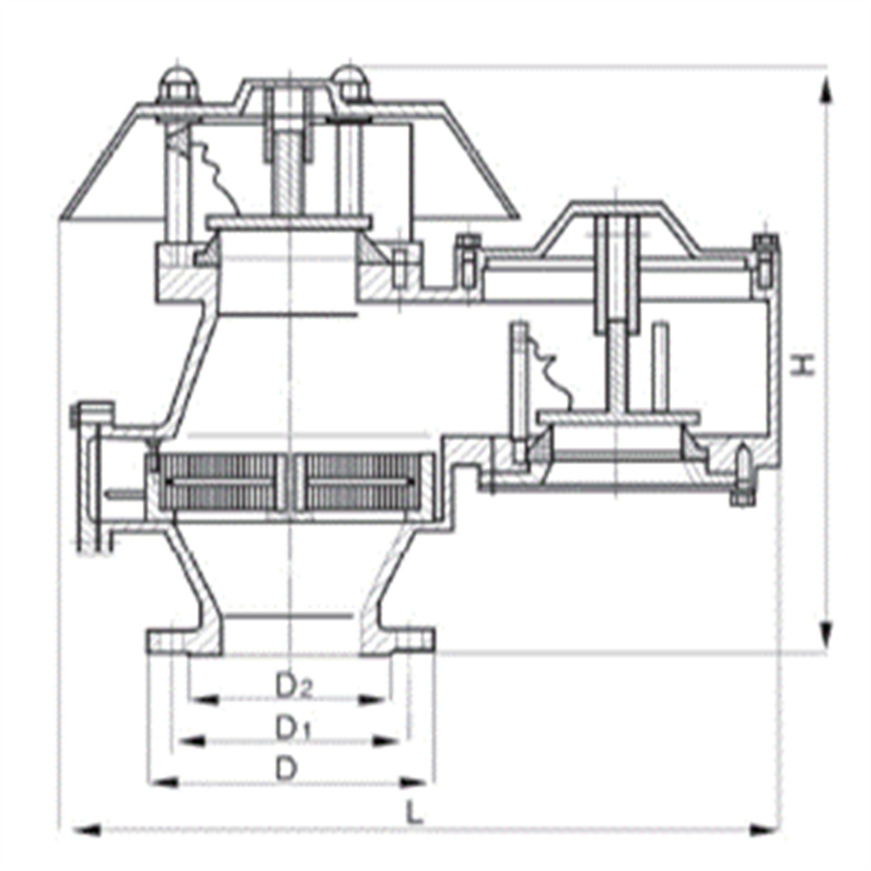
呼吸阀通过压力阀盘和真空阀盘的组合维持储罐气压平衡,防止超压或真空损害罐体,同时减少物料挥发。当储罐内压力逐渐上升至预设的定压值时,压力阀会自动开启,允许罐内气体通过呼气阀(即压力阀)侧顺畅地排放至外界大气中。在此过程中,真空阀则因罐内正压的作用而保持关闭状态。相反,当储罐内压力降至特定真空度以下时,真空阀会在大气压的正压作用下打开,允许外界气体通过吸气阀(即真空阀)侧进入罐内。此时,压力阀则保持关闭以防止气体进入。储罐顶部的呼吸阀是保障储罐安全的核心装置,通过精密结构实现罐体内外压力平衡。其"双胞胎"系统由压力阀盘与真空阀盘组成:压力阀在超压时开启排气,防止罐体膨胀破裂;真空阀则在负压时进气,避免罐体被压瘪。防雨罩可阻挡异物侵入,导杆组件通过弹簧控制阀盘启闭节奏。实际案例显示,设备老化、聚合物堵塞、锈蚀卡死等问题均会引发严重事故。
呼吸阀工作状态分四阶段:正常密封减少蒸发;超压时气体呈伞状排出;负压时空气涡流补入;工况下泄压速度提升300%,曾为某化工厂争取17分钟黄金救援时间。产品形态分四类:并列式适用于小型罐体,同轴式节省空间,阻火款配备金属滤网,防冻款采用夹套加热设计,-30℃环境结冰率可降至3.8%。
安装规范要求呼吸阀必须位于罐顶最高点,双阀呈180°对称布置,极寒地区需配置加热装置。维护方面需建立三级保养体系:每月内窥镜检查阀盘,季度加注润滑脂并测试弹簧,年度更换密封件并进行压力测试。典型应用场景包括石油罐区配氮封系统降VOCs,化工装置用防爆型处理苯类介质,食品行业选316L不锈钢款防污染。
这个工业领域的"隐形卫士"通过压力平衡艺术守护安全,其设计细节与运维规范直接关系到化工、能源、食品等多行业的生产安全。

安装于储罐顶部最高点可降低蒸发损耗和优化排气,大型储罐可采用双阀配置以减少故障风险。呼吸阀在储罐中扮演着至关重要的角色,其安装位置及方式直接影响着储罐的安全与性能。安装在储罐顶部的最高点,旨在降低蒸发损耗并优化排气效果,确保呼吸阀能顺畅地提供最大通道。

02石油储罐全天候防冻呼吸阀安装维护呼吸阀的功能
在正常情况下,呼吸阀起到密封作用。然而,当出现以下特定情况时,呼吸阀会开始其工作:
(1) 当储罐向外输出物料时,呼吸阀会开始向罐内吸入空气或氮气,以确保罐内压力的稳定。
(2) 在向储罐内灌装物料的过程中,呼吸阀会将罐内多余的气体呼出,以维持罐内气体的平衡。
(3) 由于气候变化或其他原因导致罐内物料蒸汽压的升高或降低,呼吸阀会相应地呼出蒸汽或吸入空气或氮气,这种通常被称为热效应的现象。
(4) 一旦发生火灾,储罐内呼出的气体受热会导致罐内液体蒸发量急剧增加。此时,呼吸阀会向罐外呼出气体,以防止储罐因压力过高而受损。
(5) 在其他工作状况下,例如挥发性液体的加压输送、内外部传热装置的化学反应以及操作失误等,呼吸阀都会根据需要进行呼出或吸入操作,以保护储罐免受超压或超真空的损害。
在储罐出料或进料过程中,呼吸阀调节气体流动维持罐内压力,并在外界因素变化时进行调节以保护罐体。
呼吸阀能根据需要呼出或吸入气体,防范因热效应或化学反应引起的潜在危险。

03石油储罐全天候防冻呼吸阀安装维护呼吸阀的标准与安装
防爆阻火呼吸阀是石油化工领域储罐的核心安全设备,集成防爆、阻火、呼吸三大功能,通过精密设计实现多重防护。
【核心防护机制】
采用双阀盘结构:正压阀盘在罐内压力≥3kPa时自动泄压,负压阀盘于≤-0.5kPa时补气,维持压力平衡。内置0.7mm孔径波纹不锈钢阻火层,经ATEX/FM认证,可阻断火焰传播。某炼化企业案例显示,更换PTFE阀盘后事故率下降95%,年蒸发损耗减少78%。
【石油储罐全天候防冻呼吸阀安装维护三阶工作原理】
1. 压力调控:正负压阀盘交替启闭(泄漏率≤0.5%),LNG储罐实测响应时间≤0.3秒
2. 火焰阻隔:金属通道通过热传导与器壁效应,连续13次成功阻爆
3. 智能密封:交错启闭设计避免双阀同时开启,沿海台风工况验证负压保护阈值精确至0.6kPa

【材质适配方案】
阀体:常规工况选Q235B碳钢,腐蚀介质需304/316不锈钢,氯离子环境推荐铝青铜
阻火层:316L波纹板耐温35-180℃,沿海地区建议双相不锈钢
密封件:PTFE镀层阀盘(表面电阻≤10⁹Ω),避免橡胶件静电风险
【石油储罐全天候防冻呼吸阀安装维护环境适配设计】
寒区配置40℃保温夹套,湿热地区加装双层防尘网,剧毒介质罐体可外接活性炭吸附装置实现。

【标准化维保流程】
日巡检:监测阀体温差<5℃
月清洗:压缩空气反吹+煤油浸泡,确保孔隙通透率>95%
季校验:检测启闭压力值(355Pa/B级980Pa)
年大修:更换导杆密封圈,执行0.2MPa水压测试
【选型核心准则】
✘ 忌选无阻火功能的普通阀(甲/乙类液体必选B级以上防爆款)
✘ 忌低位安装(呼吸口高度需≥4m,1.5m内无遮挡)
该设备在中石化、中石油原油罐区实测年蒸发损耗降低78%,火灾风险下降92%,为储罐安全提供双重保障。
呼吸阀在各个领域都有其特定的应用,因此也制定了相应的标准。以下是一些常见的呼吸阀标准:
SY/T 0511.1-2010《石油储罐附件 第1部分:呼吸阀》
TB/T 3319-2013《铁道罐车用呼吸式安全阀》
QC/T 1064-2017《道路运输易燃液体危险货物罐式车辆 呼吸阀》
DIN EN 14595-2016《危险品运输罐 罐的操作装置 压力和真空呼吸阀》
这些标准为呼吸阀的设计、制造、测试和使用提供了明确的指导和规范,确保了其安全性和可靠性。

安装时需注意位置、数量及对称布置,寒冷地区需实施防冻措施确保正常运行。呼吸阀在储罐中扮演着至关重要的角色,其安装位置及方式直接影响着储罐的安全与性能。
各行业为呼吸阀制定了标准,指导其设计、制造和测试,保证安全性与可靠性。
全天候防冻呼吸阀,顾名思义,是一种能够在全天候条件下正常工作的呼吸阀,特别是在寒冷气候中,能够有效防止系统因冻结而造成损坏。它通常用于各种需要防止冷凝水和压力积聚的系统中,例如:

为了确保进口全天候防冻呼吸阀能够长期稳定工作,需要定期进行维护。具体维护方法如下:
定期检查呼吸阀的外观,是否有损坏、漏水等现象。如果发现问题,及时进行维修或更换。
定期清理阀门,防止阀门堵塞或卡死。可以使用压缩空气或清水清理阀门。
定期润滑阀门,防止阀门磨损。可以使用润滑油或黄油润滑阀门。

市场上有很多进口全天候防冻呼吸阀品牌,以下是几个比较的品牌:
选择进口全天候防冻呼吸阀时,建议选择的优质产品,确保产品质量可靠,并能够长期稳定工作。