FLJ41Y手动液化气节流截止放空阀操作应用案例
节流截止放空阀广泛应用于石油、天然气、煤气、石油液化气及炼油、机场、化工、油气储运等的管道上作闭路装置节流截止放空阀是在吸收截止阀和节流阀技术的基础上发展起来的新一代高性能节流截止放空阀,既可以达到可靠的截止功能,又具有节流和放空的功能。节流截止放空阀具有噪声低、密封可靠、耐冲蚀、使用寿命长、启闭力矩小,操作方便,易于维修,工作稳定可靠等特点,适用于石油、天然气输送管道装置节流、截止、放空用。

一、FLJ41Y手动液化气节流截止放空阀操作应用案例结构特点
节流截止放空阀是采用自平衡式套简多孔分流双密封式阀芯,软硬双重密封能满足高压气体介质工作条件下“零泄漏”,缓压装置能满足特殊工况条件下介质的正反向流动。节流部位与密封部位分开,避开了介质的直接冲刷,延长了使用寿命。
①阀芯底端面与阀座端面组成—道硬密封副,密封面堆Stellite合金。
②阀芯底端面与笼形套斜槽和阀座斜槽里面的凸形橡胶圈组成软密封副。
③阀芯套嵌密封橡胶圈的环槽至阀芯套开槽处有一段缓压距离,使阀芯底揣离开阀座上端面接近笼形套开槽处时形成密封缓压带,保护密封副在阀门放空时不受直接冲刷。
④阀芯套上开设有窗口,其窗口面积能保证流通能力。阀芯在阀杆提升作用下,改变窗口的通流面积,形成流量的变化。窗口的边绦为节流口的节流面,其表面堆焊有Stellite合金〔简称STL合金)。
⑤阀芯为柱塞形结构,其中部开设平衡孔,使阀芯在笼芯套内壁上下移动中受力平衡,开启轻便。
⑥阀芯设有两道O形圈,在两道O形圈间设有储渣槽,阀芯下端O形圈在阀套内上下移动实现自动除渣,阀芯外圆及阀套内壁随时保证清洁。
⑦阀芯储渣槽的设置,减少阀芯与阀套接触面积,降低了摩擦阻力,并对第二道密封圈提供了良好的工作条件。
③为保证填料密封不外漏,分别在上阀盖密封处、下填料垫和注脂衬环加有橡胶O形密封圈,并与聚四氟乙烯填料交叠配置,以保证在松动情况下压紧密封螺母仍能保证密封性能要求。
二、FLJ41Y手动液化气节流截止放空阀操作应用案例节流截止放空阀的功能
①截止密封功能采用软硬双重密封结构,软密封座安装于独立的阀座密封槽内,并由阀套固定,无论介质正向或反向流动,密封圈均不会被吹出。
②节流调节功能阀套上设计了对称节流小孔,介质进人节流孔并沿中心向下游流动。节流孔采用了分层排列结构,引导介质实现分层流动,有效防止介质产生紊流和漩涡。
③放空功能多级节流结构保证阀门可实现全压差下的放空功能。
三、FLJ41Y手动液化气节流截止放空阀操作应用案例工作原理图

图2为节流截止放空阀关闭、节流、放空
1、关闭状态,阀芯硬密封副揣面紧压在阀座的端面,同时凸形橡胶圈紧贴在阀芯底端面上,形成软硬双重密封,保证了气体介质零泄漏。
2、缓压状态,阀门开启阀芯底端离开阀座端面,底端面又接近阀芯套开槽处底边绦时,阀芯外径与笼形套内径形成一道密封副,此时介质没有直接放空泄压,起到缓压作用。
3、节流状态,阀芯上移,放空时高速流体经缓压后直接冲刷阀芯底端与阀芯套开槽处形成窗口流道,由于阀芯套窗口边绦是节流面,高压气体主要冲刷节流通道,阀芯底端面由于介质流向改变产生涡流,减缓了介质对阀芯底端的冲刷,从而开槽处下部的阀座密封副避开了介质的直接冲刷。
4、全开状态,阀芯上移至阀芯套开槽处上端时,放空处于中后期,压力降低,流体在阀门中阻力较小,缩短了放空时间,提高了放空效果。

【FLJ41Y手动液化气节流截止放空阀操作应用案例产品特点】
1、本阀是一种新型的节流、截止、放空产品,该阀门采用笼形迷军团节流,具有多级节流效果,节流效果明显、密封可靠、操作维护方便等特点
2、阀门采用双重密封(硬、软质密封)使密封可靠、硬质合金封面可以更耐气流冲刷、耐磨损,双重密封能做到在高压气体介质条件下的零泄漏。阀门使用寿命长
3、阀座的密封面采用锥度密封,有利于阀门自身清洗附在密封面上的脏物
4、阀门的阀瓣上设置了平衡孔,活塞式密封,保证了启/闭全压差条件下稳定操作,开启轻便灵活、启闭扭矩小
5、节流截止放空阀和双作用式节流阀同时具有节流与截止(密封为零泄漏)作用节流部位与密封面分开,以减小气流对密封的冲刷
6、双作用式节流截止阀还具有多级节流功能,节流压差大,能适用于高压下的节流与截止
7、填料采用带自密封能力的V形填料结构,无需调节,开、关极为轻便。填料函处设有辅助密封油脂注入结构,使阀门填料密封性能可靠
8、本阀门可以进行在线维修,管线可以带压状态下更换填料等一系列易损件
9、本阀在阀门的底部设置了较大的排污孔,必要时要以打开,清理阀内污物

【FLJ41Y手动液化气节流截止放空阀操作应用案例性能参数】
| 型号 | 工作压力(MPa) | 适用温度(℃) | 适用介质 | 阀体材料 |
| FJ41-16 | 1.6 | ≤350 | 水、蒸汽、油品等 | 碳钢 |
| FJ41-25 | 2.5 | |||
| FJ41-40 | 4.0 | |||
| FJ41-64 | 6.4 | |||
| FJ41-100 | 10.0 | |||
| FJ41-160 | 16.0 |

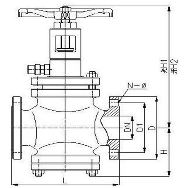
FLJ41Y手动液化气节流截止放空阀操作应用案例主要外形和连接尺寸
| PN | DN | 尺寸(mm) | 重量(kg) | |||
| L | H | H1 | D0 | |||
| 1.6 | 25 | 216 | 243 | 86 | 180 | 17 |
| 40 | 230 | 265 | 108 | 250 | 24 | |
| 50 | 230 | 346 | 115 | 250 | 27 | |
| 80 | 310 | 409 | 146 | 300 | 52 | |
| 100 | 350 | 433 | 163 | 300 | 60 | |
| 150 | 480 | 521 | 202 | 350 | 125 | |
| 200 | 600 | 594 | 292 | 350 | 165 | |
| 250 | 730 | 621 | 355 | 400 | 285 | |
| 2.5 | 25 | 216 | 243 | 86 | 180 | 17 |
| 40 | 230 | 265 | 108 | 250 | 24 | |
| 50 | 230 | 346 | 115 | 250 | 27 | |
| 80 | 310 | 409 | 146 | 300 | 55 | |
| 100 | 350 | 433 | 163 | 300 | 66 | |
| 150 | 480 | 521 | 202 | 350 | 140 | |
| 200 | 600 | 594 | 292 | 350 | 180 | |
| 250 | 730 | 621 | 355 | 400 | 310 | |
| 4.0 | 25 | 216 | 243 | 86 | 180 | 20 |
| 40 | 230 | 265 | 108 | 250 | 29 | |
| 50 | 230 | 346 | 115 | 250 | 32 | |
| 80 | 310 | 409 | 146 | 300 | 67 | |
| 100 | 350 | 433 | 163 | 300 | 80 | |
| 150 | 480 | 521 | 202 | 350 | 168 | |
| 200 | 600 | 594 | 292 | 350 | 215 | |
| 250 | 730 | 621 | 355 | 400 | 372 | |
| PN | DN | 尺寸(mm) | 重量(kg) | |||
| L | H | H1 | D0 | |||
| 6.4 | 25 | 216 | 243 | 86 | 180 | 20 |
| 40 | 230 | 265 | 108 | 250 | 29 | |
| 50 | 230 | 346 | 115 | 250 | 32 | |
| 80 | 310 | 409 | 146 | 300 | 67 | |
| 100 | 350 | 433 | 163 | 300 | 80 | |
| 150 | 480 | 521 | 202 | 350 | 168 | |
| 200 | 600 | 594 | 292 | 350 | 215 | |
| 250 | 730 | 621 | 355 | 400 | 372 | |
| 10.0 | 25 | 230 | 245 | 78 | 200 | 29 |
| 40 | 260 | 265 | 106 | 250 | 42 | |
| 50 | 300 | 287 | 110 | 300 | 55 | |
| 80 | 380 | 409 | 152 | 350 | 95 | |
| 100 | 430 | 433 | 169 | 350 | 120 | |
| 150 | 559 | 531 | 225 | 400 | 240 | |
| 200 | 660 | 709 | 321 | 500 | 310 | |
| 250 | 787 | 817 | 399 | 500 | 530 | |
| 16.0 | 25 | 230 | 215 | 78 | 200 | 35 |
| 40 | 260 | 265 | 105 | 250 | 50 | |
| 50 | 300 | 237 | 110 | 300 | 65 | |
| 80 | 390 | 414 | 155 | 350 | 116 | |
| 100 | 450 | 440 | 175 | 350 | 145 | |
一、FLJ41Y手动液化气节流截止放空阀操作应用案例的功能
双过节截止阀是一种具有单向流动功能的阀门,可以控制流体在管道中的流动方向,调节流量和停止流动。它通常用于管道系统的水、气和油等流体介质的控制。

二、安装位置和注意事项
1. 安装位置:双过节截止阀可以安装在任何需要控制流体的管道中,但要避免在高温或高压的管道中使用。同时,双过节截止阀的安装位置应在易于操作和维护的地方。
2. 注意事项:安装双过节截止阀时,需要先关闭管道的主阀门,否则会影响安装过程和操作效果。安装前应确定管道的介质和工作压力,选择合适的阀门材质和规格。安装完成后,应注意检查和维护阀门的密封性能和操作效果,避免泄漏和运行不畅的情况。
三、双过节截止阀的种类和应用
1. 双溢流式截止阀:适用于依靠上游水头形成的压力差控制流量的场合,如给排水管道、水泵进出口等。
2. 双密封截止阀:适用于要求较高密封性和流量调节的场合,如工业管道中液体的控制。
3. 双延伸杠杆型截止阀:适用于直径较大的管道上,杠杆的长度可以使操作变得方便,其杠杆延长与实际阀门位置成比例。
4. 双跨越式截止阀:适用于在气体管道上、流量很小或者无法开启的场合,如低压气体管道、液化天然气贮藏罐等。
四、FLJ41Y手动液化气节流截止放空阀操作应用案例结语
双过节截止阀是管道系统中一个非常重要的组成部分,在流体的控制和停止中起到了至关重要的作用。在安装和使用时,需要选择合适的阀门种类和规格,并按照正确的方式进行操作和维护,从而保证管道系统的正常运行和安全。

四、FLJ41Y手动液化气节流截止放空阀操作应用案例安装、调试、操作维护保养及维修
①节流截止放空阀可在室内外安装,安装时注意阀体上的介质流动方向,阀体上的介质流动箭头标识应与管道介质流动方向一致。若介质反向流动,订货时应说明,以便特殊设计制造。
②安装位置应能保证阀门安装、维修、检查和操作手轮有足够的空间。
③安装调试时注意保护阀体端法兰连接部位表面不要碰伤.划伤,否则阀门不能正常工作。
④放空截止阀为常闭阀门,使用于紧急放空及其他常闭工作条件。调试时,首先应逆时针转动手轮,使阀门达到最大行程,然后,顺时针旋转手轮,使阀门达到最小行程,感觉开启是否轻便灵活,密封是否可靠。
⑤阀门在未开箱前不得露天堆放。
⑥阀门在使用过程中,应注意在注脂阀加密封脂。
⑦在维修保养时,应注意密封副的清洁及检查软密封是否损坏。若软密封损坏,则须更换。