一、电动矩形多轴百叶风阀应用案例结构组成
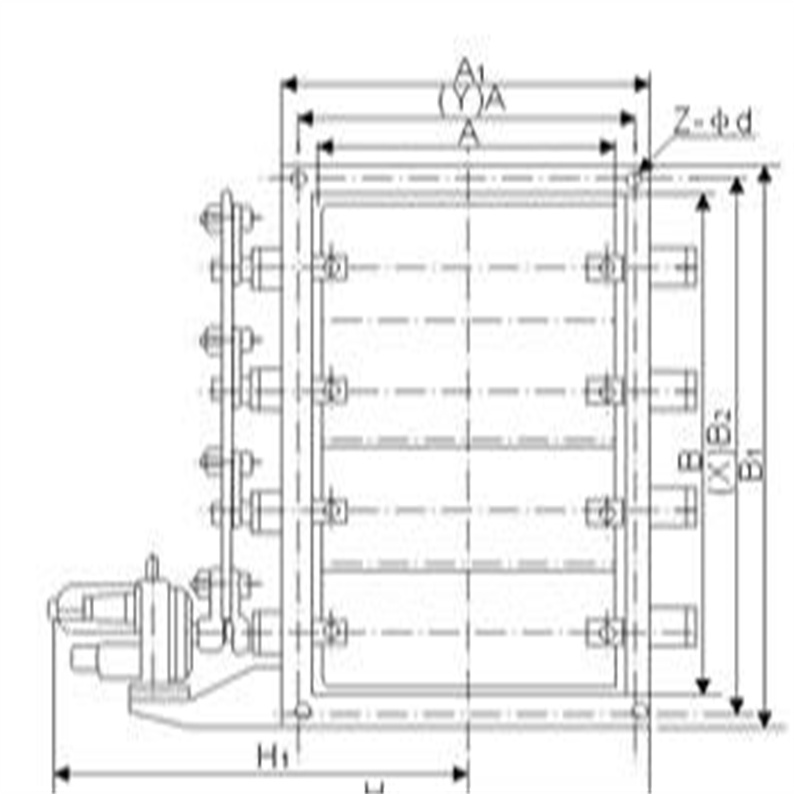
电动百叶风阀主要由阀体、百叶板、阀轴、连杆机构和驱动装置构成。阀体通常采用不锈钢、碳钢等材质焊接而成,具有结构紧凑、重量轻的特点。百叶板由多片绕轴旋转的叶片组成,通过连杆机构实现同步启闭。驱动装置多为电动执行器,能够接收电信号并转化为机械力矩,驱动阀门动作。可广泛地应用于冶金、建材、化工、电站、玻璃等行业中的通风、环保工程的含尘冷风或热风气体管道中,作为气体介质流量调节或切断装置,特别适用于大口径、大流量、低压差场合。它可与各种执行器配套使用组成不同性能的设备
本阀是与电动执行机构配套使用。具有启闭力矩小、动作灵敏、性能可靠、口径大、重量轻等优点。广泛应用于冶金、建材、电力、石化、轻工等工业部门的风机、空调机、电收尘和各种大型管道中,能对粉尘、气体进行自动或手动调节和切断,根据温度和耐磨情况,选用阀门耐温材料、耐磨涂层厚度和保温层,按不同的控制信号调节流量大小。从而实现工业生产过程的自动调节和远程控制。电动百叶风阀是一种用于工业通风及环保工程管道系统的气体流量调节与切断装置,具有自动化控制、结构简单、流阻小等特点,具体介绍如下:
在冶金、建材、电力、石化等工业领域,通风系统的稳定运行直接关系到生产效率与安全。作为核心控制元件,矩形百叶风阀凭借其独特的多轴联动结构与精密密封技术,成为工业管道中实现气流精准调控的“神经中枢"。本文将从结构原理、技术特性、应用场景及创新方向四个维度,深入解析这一工业阀门的性能优势。

一、电动矩形多轴百叶风阀应用案例结构原理:多轴联动实现气流无级调节
矩形百叶风阀的核心结构由多片平行排列的铝合金叶片组成,叶片厚度通常控制在3-5mm,边缘嵌入0.8mm厚的EPDM橡胶密封条。当驱动装置(电动或手动)通过涡轮蜗杆传动带动主轴旋转时,同步连杆机构会牵引所有叶片同步偏转,实现0°至90°的开度调节。
线性调节特性:在90°行程内,叶片开度与介质流量呈线性关系,例如开度30°时阻力系数可达1.8,开启时阻力系数骤降至0.15,确保流量控制的精准性。
密封性保障:EPDM密封条与叶片边缘的精密配合,使泄漏率低于0.5%,在制药车间等高洁净度场景中,可有效隔绝外界污染。
耐高温改造:针对650℃以上的高温烟气,叶片表面可喷涂碳化钨涂层,并通过激光测振仪检测叶片固有频率,避免6-12Hz的共振区间,确保动态稳定性。
二、电动矩形多轴百叶风阀应用案例技术特性:高效、耐用与智能化的融合

轻量化与低阻力设计
采用焊接钢板框架与铝合金叶片的组合,重量仅为同规格闸阀的1/3,配合流线型阀板结构,流阻降低40%以上。例如,在7-12m/s的烟气流速下,矩形百叶风阀的能耗比传统阀门减少25%。
耐腐蚀与长寿命
阀体材质可选304不锈钢或2205双相钢,后者在含氯离子环境中使用寿命延长8倍。某化纤企业案例显示,升级双相钢材质后,阀门维护周期从6个月延长至5年。
智能监测与预测性维护
新型智能阀门集成应变片与温感元件,可实时监测叶片受力状态。某水泥厂通过分析DCS系统中的扭矩曲线,提前发现催化剂结块故障,使故障停机时间减少73%。
三、电动矩形多轴百叶风阀应用案例应用场景:从工业管道到建筑通风的跨界

工业领域
冶金行业:在高炉煤气管道中,矩形百叶风阀可快速截断介质,响应时间≤2秒。
电力行业:某电厂通过在烟气脱硫系统中安装自诊断型风阀,将系统压力波动幅度降低60%。
建材行业:水泥厂在百叶阀下游加装压缩空气脉冲清灰装置,使卡涩故障率从每月3次降至每年不足1次。
建筑领域
商业综合体:在空调系统中,通过调节叶片角度实现冷暖风精准分配,能耗降低15%。
洁净车间:制药厂采用密封型百叶风阀,配合红外热像仪检测泄漏,确保车间内正压环境。
四、电动矩形多轴百叶风阀应用案例创新方向:绿色化与智能化的双重突破

环保节能技术
余热回收:在高温烟气管道中,通过优化叶片角度控制,提升热交换效率。
低泄漏设计:某企业研发的真空密封技术,使泄漏率进一步降至0.1%。
智能控制升级
5G远程操控:通过云平台实现阀门开度实时调整,某化工厂的远程控制响应延迟缩短至50ms。
AI预测模型:结合历史数据与实时传感器信息,预测阀门故障概率,某钢铁企业的维护成本降低40%。
结语
矩形百叶风阀作为工业通风系统的“神经末梢",其技术迭代始终围绕高效、可靠、智能三大核心需求展开。从冶金行业的工况到商业建筑的舒适环境,这一看似简单的机械装置,实则是工业4.0时代“绿色制造"与“智能制造"的交汇点。随着材料科学与物联网技术的深度融合,矩形百叶风阀必将在更多领域展现其不可替代的价值。

二、电动矩形多轴百叶风阀应用案例性能特点
是一种新型的阀门,它主要用于工艺管道中空气、烟气、灰尘及可燃性气体流量的调节和启闭控制。被广泛应用于冶金、矿山、建材、化工、电站等行业。
自动化控制:电动百叶风阀支持远程精确调节百叶板开合角度,实现流体流量的精准控制。操作人员可在控制室通过电信号改变阀门开度,提高工作效率并降低人工操作风险。
流阻小:阀门设计采用多片百叶板结构,有效减少流体通过时的阻力,降低系统能耗。
转动灵活:百叶板通过阀轴与连杆机构连接,转动灵活且启闭力矩小,适用于频繁调节的工况。
维护简便:阀门结构简单,部件较少,故障率低且易于拆卸维修。

三、电动矩形多轴百叶风阀应用案例应用场景
电动百叶风阀广泛应用于冶金、建材、化工、电站等行业的通风及环保工程管道系统。适用于含尘冷热风气体介质的流量调节或切断,尤其在大口径、大流量、低压差工况中表现突出。例如,在火力发电厂除尘器烟气排放系统、钢铁高炉煤气净化管路等场景中,电动百叶风阀能够实现高效、稳定的流体控制。
工作温度 -30~250℃ 使用环境温度 电动执行机构:10~5℃
公称压力 0.05MPa 何服放大器:0~45℃
输入信号 0~10mA或4~20mA 环境相对湿度 电动执行机构:≤95%
电源电压 220V 50HZ 何服放大器:≤85%
死区 ≤0.8% 材料 阀体阀板 Q235-A
回差 ≤2.5% 轴 20r13
基本误差 ±2.5% 填料
聚四氟乙烯

电动矩形多轴百叶风阀应用案例
| 序号 | 品 名 | 型 号 及 规 格 | 单位 | 数量 |
| 1 | 电动蝶阀 | 电动蝶阀D941W 压力2000PA 尺寸1600*2400*600MM 1600MM装电装 1800MM边:孔距100,侧边18个孔, 2600MM边:孔距100,下边26个孔 进法兰到出法兰600MM(厚度) 带进出口配套法兰 电动执行器型号:Q500-0.5K 电压:380V 电机:0.55KW 2.5A 输出转矩:5000N.M 防护等级IP65 天津一北方阀门电机成套设备有限公司 | 套 | 1 |

| 工作温度 | -30~250℃ | 使用环境温度 | 电动执行机构:-10~55℃ | |
| 公称压力MPa | 0.05 | 伺服放大器: 0~45℃ | ||
| 输入信号DC | 0~10mA、4~20mA | 环境相对湿度 | 电动执行机构: ≤95% | |
| 电源电压 | 220V AC 50Hz | 伺服放大器: ≤85% | ||
| 死区 | ≤0.8% | 材料 | 阀板 | Q235-A |
| 回差 | ≤2.5% | 轴 | 2Cr13 | |
| 基本误差 | ±2.5% | 填料 | 聚四氟乙烯 | |
| 工作温度 | -30~250℃ | 材料 | 阀体阀板 | Q235-A |
| 公称压力PN | 0.05MPa | 轴 | 2Cr13 | |
| 泄漏率 | ≤1.5% | 填料 | 聚四氟乙烯 |

电动矩形多轴百叶风阀应用案例关于对电动百叶蝶阀的操作要求讲解:
1、电动百叶蝶阀在使用,可以安装在水平或垂直管道上,但阀轴必须要在水平位置。
2、电动百叶蝶阀安装在露天时,需做防雨罩确保电动执行器不受外界天气的影响。
3、电动百叶蝶阀当手动操作时,不得在手轮上再增加辅助杠杆。手轮顺时针旋转为阀开,反之为阀关。
4、电动传动机构不允许做起吊用,并严禁碰撞。
电动百叶蝶阀(圆式)是与电动执行机构配套使用,该产品具有叶片多、噪声小、重量轻、操作力矩小、流通能力大、操作方便等优势,特别适用于大口径、大流量、低压差场合(如风机进出口处)。电动百叶阀广泛应用于冶金、矿山、建材、电力、石化、轻工等工业部门的风机、空调机、电收尘机和各种大型管道中,能对各种粉尘、气体进行自动或手动调节和切断。
电动百叶阀分为圆形百叶阀和方形百叶阀,形状由管道的形状而定。主要用于工艺管道中空气、烟气、灰尘及可燃性气体流量的调节和启闭控制。电动百叶阀是与电动执行机构配套使用,具有启闭力矩小、动作灵敏、性能可靠、口径大、重量轻等优点。

电动矩形多轴百叶风阀应用案例关于对电动百叶阀的操作要求讲解:
1、电动百叶阀在使用,可以安装在水平或垂直管道上,但阀轴必须要在水平位置。
2、电动百叶阀安装在露天时,需做防雨罩确保电动执行器不受外界天气的影响。
3、电动百叶阀当手动操作时,不得在手轮上再增加辅助杠杆。手轮顺时针旋转为阀开,反之为阀关。
4、电动传动机构不允许做起吊用,并严禁碰撞。
电动百叶阀(圆式)是与电动执行机构配套使用,该产品具有叶片多、噪声小、重量轻、操作力矩小、流通能力大、操作方便等优势,特别适用于大口径、大流量、低压差场合(如风机进出口处)。电动百叶阀广泛应用于冶金、矿山、建材、电力、石化、轻工等工业部门的风机、空调机、电收尘机和各种大型管道中,能对各种粉尘、气体进行自动或手动调节和切断。